Bari is a multi-cuisine restaurant in Dombivli, designed as an immersive dining space where warmth and bold visual character come together. A rich mustard-yellow envelope defines the identity, creating an energetic yet inviting setting that balances familiarity with a distinct presence.
The vibrant palette is softened through natural wood, tactile upholstery, patterned surfaces, and curated art. A double-height volume introduces openness and drama, while large glazed openings connect the interior to the street, making the space feel active, bright, and welcoming.
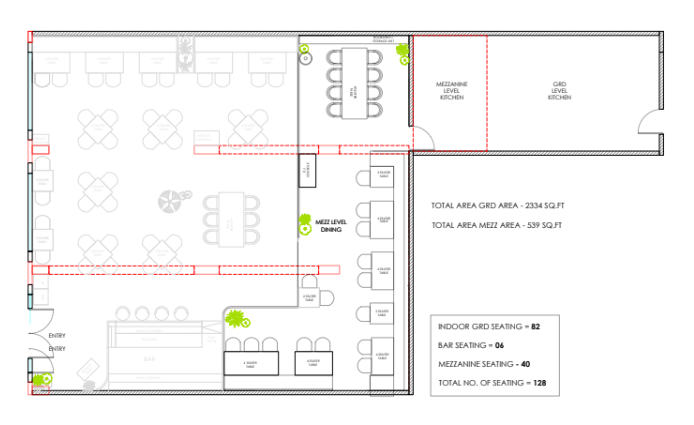
Dining unfolds across interconnected levels, offering varied seating experiences while maintaining visual continuity. Arched frames, layered lighting, and structured furniture layouts create rhythm, guiding movement through intimate corners, open zones, and overlook moments.