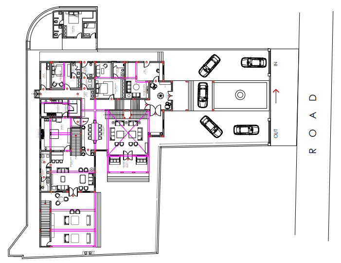
Cottage 07

Type

Residential

Size

14,000sqft.

Year

2024 - 2026

Location

Kohefiza, Bhopal, Madhya pradesh

Defined by a quiet sense of grandeur, the residence brings together contemporary classical architecture with a warm, livable interior language. Symmetry, proportion, and arched forms establish a timeless framework, softened by a palette that feels refined yet comfortable.

Polished marble, muted wood finishes, soft upholstery, and subtle brass accents create a restrained yet rich material palette. Natural light filters through large openings and sheer drapery, enhancing textures and reflections to shape calm, luminous interiors.

As one moves through the home, spaces shift in character—from serene, softly layered living areas to more expressive zones like the dining, kitchen, and bath. This balance of restraint and contrast creates rhythm, resulting in a home that feels composed, personal, and quietly luxurious.