Boojee Carter Road

Type

Food & Beverages

Size

1000 sqft

Year

2019

Location

Shop No 6, 29, New Kantwadi Rd, off Perry Cross Road, Bandra West, Mumbai, Maharashtra 400050

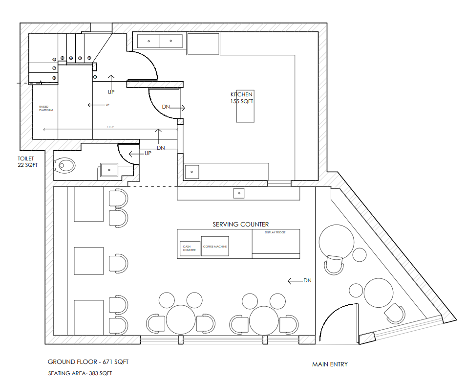
Boojee is conceived as a compact, high-impact café where a small footprint is used to create a strong visual and spatial presence. The design focuses on openness and clarity, making the space feel larger, more dynamic, and instantly engaging.

A restrained palette of neutral tones is layered with bold accents to create contrast without overwhelming the space. Clean lines, warm textures, and a modern material mix define the interior, keeping it minimal yet expressive. Lighting plays a central role, combining soft ambient glow with focused highlights to shape the mood.

The layout is carefully planned to maximise flow within a compact area, balancing social interaction with comfort. Seating and circulation are designed to feel intuitive, allowing the café to function seamlessly throughout the day while maintaining a cosy, energetic atmosphere.